INFO

Location:
West Loop, Chicago, IL

Project Status:
Complete

Project Size:
30,000sf

Team:
Bureau Gemmell (Architect of Record)

Goodfriend Magruder (Structure)
BTR Engineers (MEP)
Meg McMorrow (Interiors)
Warren Aftahi (Interiors)
Annabell Ren, Jiachen Wang (Photographer)

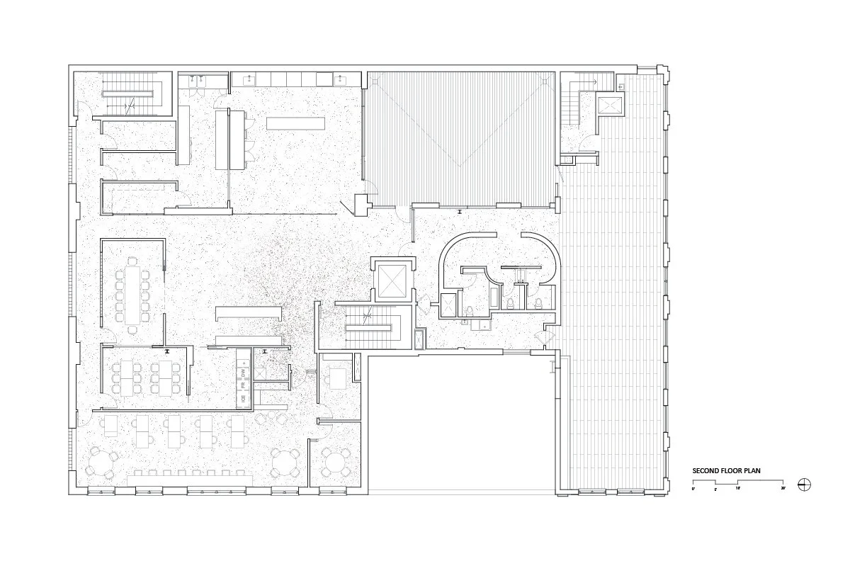
1516 W CARROLL AVE ADAPTIVE REUSE

This 1920s warehouse and attached office building has seen many iterations.  This is the second time Bureau Gemmell has worked with this client, this round joined by consulting architect New Office.  The renovation project expands the building making way for new tenants and programs by adding a second floor inside the existing high-bay warehouse structure.  The project includes a ground floor restaurant with sidewalk seating, coffee bar and retail store; second story food innovation film studio and test kitchens, private dining space, office space, and event space; and finally the third floor rooftop farm and greenhouses.  The project also includes new vertical circulation elements, new floor and roof structure, and modernization of building systems and windows.

Guided by the honest expression of a restrained material palette the different eras of construction are revealed.  Sensitive acoustic treatments and a desire to see and interact with the raw materials creates a cohesive building despite the different programs and tenants.  The project keeps exposed many of the architectural and structural elements from the earlier projects which become features in the many spaces.